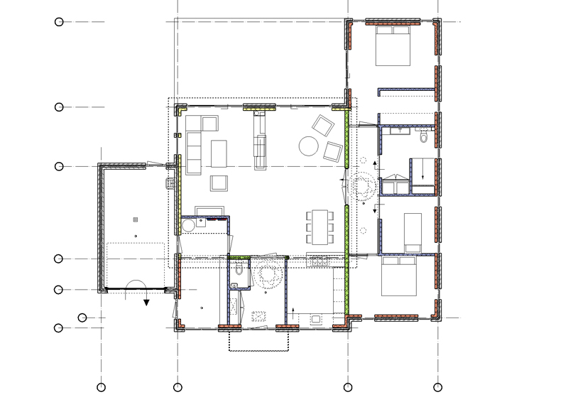
5151 - Woning Fam. v. d. Voort
Gegevens
| Categorie | Woningen |
| Opdrachtgever | Fam. v.d. Voort
|
| Opdracht | Ontwikkeling nieuwbouwwoning
|
| Plaats | ‘s-Gravenzande
|
| Oppervlakte | 210 m2
|
| Inhoud | 720 m3
|
| Aannemer | Kokshoorn BV te De Lier
|
| In samenwerking met | Plan2Be, Adviesbureau Daenen
|
Omschrijving
De opdracht betrof het wijzigen van een afgekeurd ontwerp van derden
Uitwerken en indienen omgevingsvergunning
Het maken van een technische omschrijving inclusief werktekeningen
Aanbesteding naar enkele aannemers om hierna te komen tot keuze aannemer
Tijdens de bouw zal er controle zijn van de bouw en voortgang.
Bekijk projectoverzicht
Vergelijkbare projecten